Photos/Videos
Lehr Custom AV Systems
At Lehr Custom AV Systems, we believe that great technology should look as good as it performs. Our gallery showcases real installations and completed projects across Central Illinois—featuring custom home theaters, smart home systems, outdoor entertainment setups, commercial AV, and more.
Explore our photo and video library to see how we blend design, functionality, and expert craftsmanship in every space we touch.
Let these photos and videos inspire your own project—and see what’s possible when technology and design work together.
Control 4 Videos
Wiring Clean Up Project
Do you have a stack of equipment and wires like this in your home? We updated the equipment and recessed it all in this panel. Audio throughout the house is controlled with an app and the mess is gone!!!
Bonus Room turns Media Room
The bonus room over the garage was where this client dreamed of having a Media Room. The room had several challenges to overcome, but with the help of a few measurements from the client, this project was installed over 2 days in a house about 6 hours away that we had never set foot in until the first day of installation!
We designed and installed several custom elements to make this system possible.
From the custom built equipment rack to the battery operated 120" Screen Innovations film screen suspended with stainless steel cables to look like a window valance, each piece was carefully fit to maximize the performance of the system within the physical limits of the space.
The addition of some lighting control and simple to operate remote control make this truly multi purpose room transform from a fully featured theater system to a music listening room and a home office.
Screen Upgrade and Acoustic Panel Installation
This was already a very nice theater room we had worked on years ago but when the house was sold, the new owner wanted a new 4K projector and a much bigger screen. We recommended acoustic panels to improve the sound because we moved the speakers closer to the side walls. This also helped to emphasize the screen with a really dark black surround that added a lot of visual depth to the room.
Control 4 System Upgrade and Wiring Clean Up Project
We took over this system from another dealer a while back, and it was finally time for an upgrade of equipment and some major wiring cleanup! New technology has simplified the equipment needed and the wiring between components so there was a lot to remove here to make this room way less scary to walk into. It is now faster and easier to service, updated to the latest equipment and operating system, and looks so much better.
From 75" TV to Projector -
Then from "Small" Screen to the BIG Screen
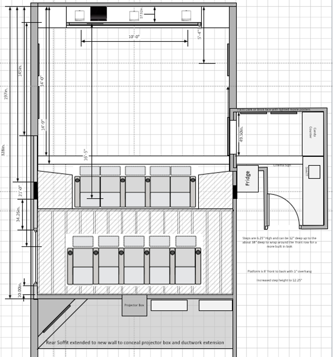
When we first met these clients years ago, they had a 75" TV with a Sonos Playbar. They wanted a projector/screen system with an upgrade to true surround sound. The room had several challenges, including the soffit about 14' away from the front wall that kept us from going any larger without a major overhaul to the room.
A 75" TV is a big TV in most rooms, but this was a pretty big wall so we installed a 120" Screen, Epson projector, Anthem MRX Receiver and Paradigm speakers/subs.
The clients added theater seats along the way, but the new goal was to get the largest possible screen in the space while maintaining good viewing angles from each seat. This setup is very carefully maxed out with regards to the screen size and height, projector distance and height, seating height and depth from the screen.
The design required multiple changes to the room including these steps: Move the fireplace, build a platform, add a back wall, hide the projector in the back wall, add a new side entrance to the room, add new cabinets, add a lot more lights, a lot more speakers, motorized blackout shade, and a custom Control 4 remote system to control it all.
The end result includes: a new Sony 4K Laser projector on a 160" 2.35:1 aspect Screen Innovations Acoustically Transparent Screen, Anthem MRX 1120 receiver, Panasonic UHD BD Player, 3 new Triad Gold LCR speakers (with custom up lights), Triad Surround speakers in the side walls and back wall, and 3 subwoofers. The audio system is now considered a 7.1.4 Dolby Atmos Surround Sound System.
The seating platform wraps around the seats for a built in look, and the client chose to add some nice built in cabinets around the screen to store all of the media and conceal the electronics. Soft carpet, bean bag chairs, and 10 recliners provide seating for a big group in this freshly updated home cinema.
The sound and picture are amazing. The room is full of fun theater decor, has custom LED lights on the steps, around the screen, and behind the screen. The new entrance in the side of the room comes through an old storage room that is now a theater lobby with a popcorn machine, fridge and future cabinets/counters etc. Most owners consider their rooms a work in progress, this room has come a very long way!​
Let us help you take your existing finished or unfinished room to the next level.
Ready to Upgrade Your Home or Business with Smart Technology?
Whether you're starting a new project or enhancing your current setup, our team is here to design and install the perfect AV or automation solution for your space.
Let’s talk about your vision and how we can bring it to life.










































